分譲マンションの一住戸の内装リノベーション
個人住宅
東京都小平市
RC造 64.33㎡
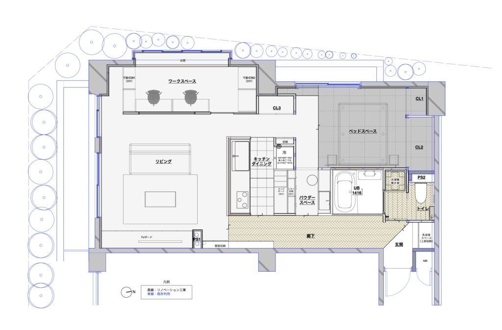
コンクリートの壁と床スラブで囲まれた専有部内の容積を最大限に活用できるよう,住戸内の半分を土間とし, 二重床を撤去することで2.6mの天井高さを確保した. またユニットバス上部やキッチンのダクト経路で通常埋め殺しとなる欄間部分を露出配管とし, 開放することで収納として使用でき, 設備のメンテナンスもしやすいキャットウォークと呼ぶスペースを設けた. これにより既存の木下地の欄間部分を切断し, 横から新たに設けた水周りの間仕切り壁の軽鉄下地で補強している. このキャットウォークを設けることで, 住宅の隅々まで自然の光と風を届け, 既存の間取りの記憶を残しながらも全く新しい住空間へと変えることができた. また施主はDIYによるハーフセルフビルドと, 各専門業者に自ら発注する分離発注方式を採用し, 施工を進めている. そのため, 通常では採用されないDIY工事ならではの納まりや, 音声操作のみで操作可能なスマートライトシステムをローコストで実現できる計画としている. 施主の夢と希望と愛着で満たされる快適で幸せな住宅になることを期待している.
改修後 リビング
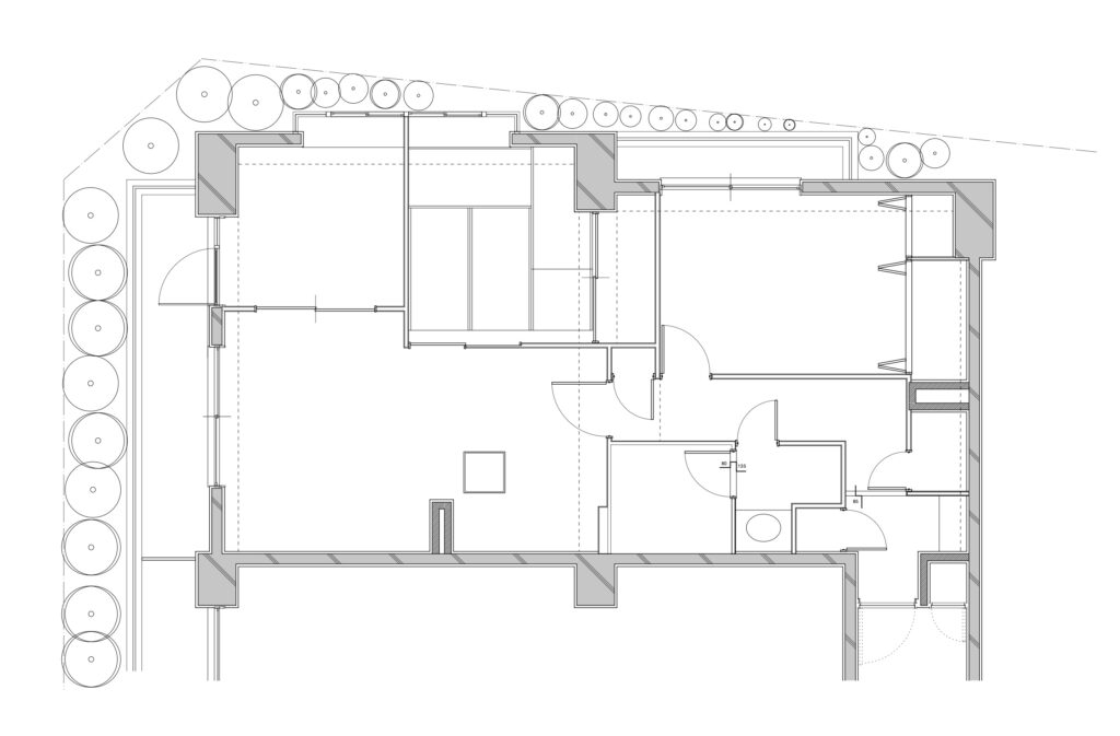
既存
工事中 既存壁木下地の横から、水周りのLGS壁下地で補強することで、各室が構造的に補完しあう。-1024x683.jpg)



-1024x683.jpg)

-687x1024.jpg)


